Сдается коммерческое помещение,
Стоимость аренды
210000
руб./месяц
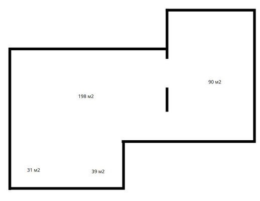
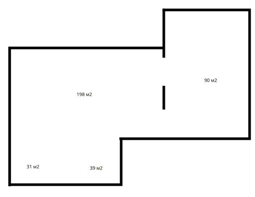
Арт. 129987977 Сдаётся в аренду производственно-складской комплекс в пгт. НекрасовскийАдрес: Московская область, Дмитровский г.о., пгт. Некрасовский, ул. Заводская, 1Площадь: от 40 до 630 кв. м (возможна аренда части или всего комплекса)Этажность: 4 этажа — уникальная возможность зонирования под любые задачи
Почему выбирают этот объект? Готовность к работе «под ключ»Помещения полностью отапливаются, все коммуникации подключены. Есть оборудованные комнаты для персонала с возможностью круглосуточного пребывания. Запускайте бизнес сразу после подписания договора. Умная планировка на 4 этажахЭффективно разделите зоны в одном здании:1 этаж — склад и погрузка2–3 этажи — производственные линии / цеха4 этаж — административно-офисные помещения Продуманная логистикаПогрузка на нулевом уровне — без пандусов и подъёмниковВысота потолков позволяет организовать стеллажное хранениеУдобные подъездные пути для фур и грузового транспортаЖ/д ветка на территории + станция Катуар в шаговой доступности Отличная транспортная доступностьБлизость к Дмитровскому шоссе — быстрый выезд на МКАД и в любое направление области. БезопасностьОхраняемая территория с контролем доступа — ваше оборудование и товар под надёжной защитой. Подходит для:Производственных предприятий любого профиляОптовых складов и распределительных центровСборочных и монтажных цеховКомпаний, которым важно объединить склад, производство и офис в одном месте Свяжитесь с нами для просмотра!Подберём оптимальную площадь под ваш бизнес-процесс. Договор аренды — напрямую с собственником, без комиссии. #8903968# Общая стоимость: 210000 руб./месяц Этаж/этажность: 1/4 Агентам: Не звонить |
2185251 14 Февраля 2026 просмотров 4 |
Добавить комментарий
Похожие объявления

































